Модульная баня с кухней
МОДУЛЬНАЯ БАНЯ С БОЛЬШОЙ КУХНЕЙ
Комплектация под отделку:
Входит внешняя отделка с покраской фасада в любой цвет. 
Внешняя отделка без декоративных сот (дополнительная услуга). 
В комплектации нет внутренней отделки и оборудования, только межкомнатные перегородки обшитые ОСП (согласно планировке).
Комплектация комфорт:
Входит внешняя отделка без декоративных сот на фасаде и покраской фасада в любой цвет, а так же внутренняя отделка вагонкой (сорт В, выкрашенная в любой цвет), с инженерией, без оборудования (розетки, 
выключатели, светильники, водонагреватель, теплые полы, сантехнические приборы), без мебели.
Сауна с отделкой под ключ (печь дровяная).
Комплектация под ключ: 
Входит внешняя отделка с декоративными сотами и покраской фасада в любой цвет, а так же внутренняя отделка, с оборудованием (розетки, выключатели, светильники, водонагреватель, теплые полы, сантехнические приборы), инженерией и мебелью в ванных комнатах.
Отделка сауны: потолок и полки - осина, рама окна - лиственница, отделка стен - необрезной кедр (массив), декоративная отделка стены над полками - спилы можжевельника, отделка стены за печью - широкоформатный керамогранит, на полу - керамогранит.
Отделка стен в сухой зоне: декоративные панели WPS (полимерный материал на основе бамбуковой стружки, возможные текстуры: камень, дерево, металл, кожа, ткань, штукатурка, однотонная). 
Подробнее о панелях на сайте ASDECO.ru
Печь в сауне можно менять по желанию заказчика.
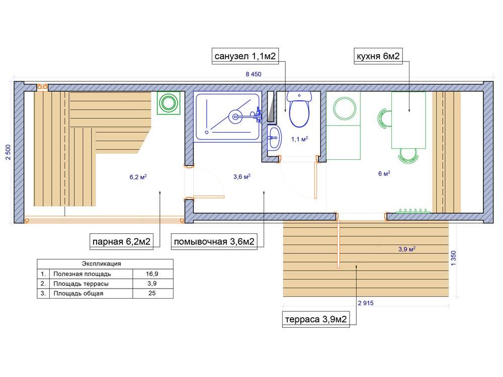
Экспликация: 
Модульная баня с кухней с входной группой, парной, душевой и зоной отдыха.
Планировка в наших домах свободная, возможны корректировки в зависимости от Ваших пожеланий.
Технические параметры:
– Полезная площадь 16,9 м2
– Габариты 8,45*2,5 м
– Вес 6 500 кг
– Установка на свайно-винтовой фундамент
Срок изготовления 6-7 недель. 
Дополнительно Вам понадобится:
- Доставка от производства в г. Электрогорск, Московской области.
- Разгрузка и погрузка модуля на транспорт краном от 25 т.
- Фундамент, предпочтительно свайно-винтовой.
- Подключение дома к коммуникациям
- Сборка террасы на месте установки
от 900 000 ₽



